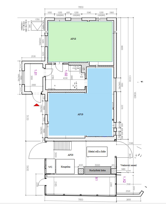
AP20 Rozpis přízemí - dokumentace