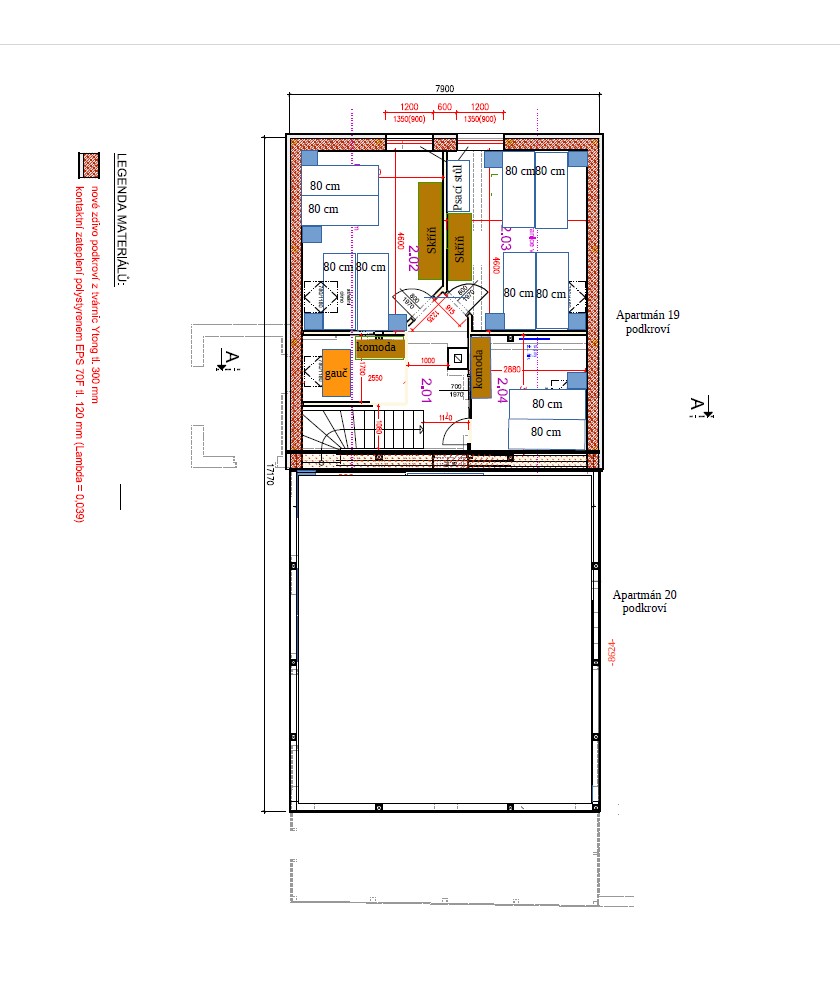
AP19 - Půdorys podkroví